
*Plan may show available options and upgrades. Click to zoom. Scroll to zoom. Drag to pan.
Your Custom Home Floor Plan
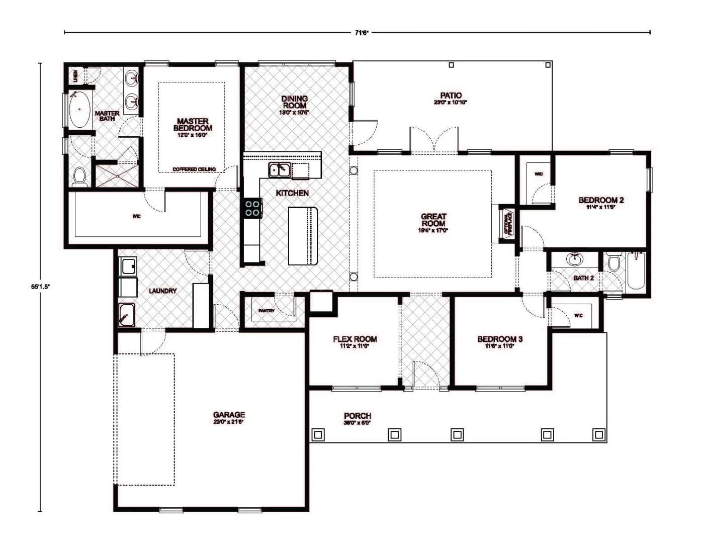
Bronson Floor Plan
3 Beds
2 Baths
2,100 Sq Ft
2 Cars
$0 Down - No Payments During Construction*
*With approved credit. No traditional construction loan required.
This splendid floor plan is the epitome of thoughtful design, blending functional living with an elegant touch, perfect for those seeking to build a custom home with a modern sensibility. The layout greets you with a sizable porch leading into a spacious great room, which serves as the central gathering space, complete with high ceilings that enhance the sense of openness and luxury.
The kitchen, a marvel of design, offers ample counter space, a convenient pantry, and a layout that makes it easy to interact with family and guests in the dining room, which is comfortably situated for both casual and formal occasions. The kitchen’s placement ensures that it is the heart of the home, where memories are made and shared.
Secluded for utmost privacy, the master suite is a serene retreat, boasting a coffered ceiling that adds architectural interest and a sense of grandeur. The suite is complemented by a master bath with a dual vanity, a sizeable shower, and a generous walk-in closet. On the opposite side of the home, two additional bedrooms offer ample space and privacy, each with easy access to full bathrooms and walk-in closets.
A flex room provides versatility, whether it be a home office, hobby room, or an extra bedroom, it adapts to your lifestyle needs. The adjacent laundry room is strategically placed for convenience.
Outdoor living is celebrated with a large patio, offering a tranquil space for relaxation and entertainment. The garage provides ample space for vehicles and storage. With a total living area of 2,100 square feet, this home is meticulously crafted to maximize comfort and style, providing a distinguished template for your custom home aspirations.
Living Area
2,100 sq ft
Bedrooms
3
Bathrooms
2
Stories
1
Cars
2
Speak To Your New Custom Home Builder Today!
25+
Years Experience
3,000+
Homes Built
5
Office Locations
A+
BBB Rating
Make It Yours
Customize the Bronson
Every floor plan is a starting point, not a box. Work directly with our design team to personalize every detail of the Bronson to fit your land, your family, and your lifestyle - at a price that's clear from day one.
Cabinet styles and finishes
Flooring throughout
Countertops and backsplashes
Exterior colors and materials
Structural layout changes
Fixtures and hardware
Ceiling treatments
Porch and outdoor living
How It Works
Build the Bronson in 5 Simple Steps
From free site evaluation to move-in day. One team, one price, one beautiful home.
01
Free Site Evaluation
We assess your land for build-readiness including soil, utilities, and access.
02
Choose Your Plan
Select the Bronson or customize it. Bring your own plan too.
03
Get Clear Pricing
Transparent pricing with no hidden fees or surprises.
04
Build Begins
Our experienced team breaks ground with one dedicated point of contact.
05
Move In
Walk through your finished dream home and start making memories.
Take the Next Step
Get Details for the Bronson
Tell us where you want to build and we'll match you with your local team.
Mortgage Calculator
*Estimate only. Does not include taxes and insurance. WAC.
$
$
%
Estimated Monthly Payment
$2,213/mo
Common Questions
Bronson Floor Plan FAQ
Yes. Every Southwest Homes floor plan is a starting point. Work directly with our design team to personalize cabinet finishes, flooring, countertops, fixtures, exterior colors, and structural options. We adapt the Bronson to fit your land, your family, and your lifestyle.
No - traditional construction loans require you to pay interest. We work with lenders who offer construction-to-permanent financing that simplifies this - often with $0 down and no payments and no interest until the build is complete. *WAC
Pricing depends on the floor plan, location, lot conditions, and customizations you choose. We provide transparent pricing with no hidden fees. Contact us for a personalized quote based on your specific plan and land.
Every home is different - the time frame changes from permit approval to move-in, depending on the plan size, site conditions, local permitting timelines, and even weather conditions. Your project manager will give you a specific schedule during the planning phase.
We typically serve a 100-mile radius around each of our offices in San Antonio, Corpus Christi, Canton TX, and Springdale AR. If you're unsure whether your land is in our service area, call your nearest office and we'll let you know right away.
Yes. Southwest Homes offers a Bring Your Own Plan option. If you have a design you love, our team can review it and provide pricing to build it on your land. Learn more about Bring Your Own Plan.
Ready to Build the Bronson on Your Land?
No construction loan required. Transparent pricing. Free site evaluation. 25+ years and 3,000+ homes built.



