Floor Plan

*Plan may show available options & upgrades.

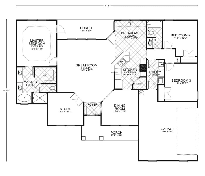
Driftwood A - Custom Home Floor Plan

This elegantly designed floor plan, perfect for those looking to create their dream custom home, offers a seamless blend of sophistication and comfort. The welcoming front porch ushers you into a well-appointed foyer that immediately conveys a sense of warmth and openness.

At the heart of the home lies the great room, complete with a 9-foot ceiling that enhances its spacious feel, making it an ideal setting for memorable gatherings and cozy family evenings. The great room flows effortlessly into a well-designed kitchen that features modern amenities, a practical island for additional counter space, and a convenient pantry. The adjacent breakfast nook offers a sunlit area for casual dining and enjoying serene mornings.

A formal dining room is thoughtfully positioned for hosting elegant dinners and special occasions, while the nearby study provides a quiet retreat for work or reading. The master bedroom is a private haven with its own 9-foot ceiling, creating an airy retreat. It boasts a luxurious master bath with dual vanities and a large walk-in closet, ensuring a peaceful and organized start to the day.

Two additional bedrooms are strategically placed to afford privacy and comfort, with easy access to the second full bath. The utility room is efficiently located off the kitchen, making household tasks discreet and manageable.

Outside, a back porch provides an extended living area to enjoy the outdoors, while the sizable garage accommodates vehicles and storage needs. With a total living area of 1,853 square feet, this floor plan is crafted to offer a balance of elegant and casual living spaces, making it an excellent choice for a family seeking both charm and functionality in their new home.

Mortgage Calculator

The calculated amount is an estimate, with the exact
loan terms determined on an individual basis.
Estimated calculated amount does not include taxes & insurance.
$ 200000
$ 150000
$ 750000
$
[downpayment]/[homeprice]*100
%
([homeprice]-[downpayment])*([interestrate]/100)/12/(1-Math.pow(1+([interestrate]/100)/12,-([loanterm]*12)))
$

Request More Information

Unlock "Build Now" Financing

Get 0% down + No Payment Until Completion
*With Approved Credit

$5,000

Save On Upgrades

LIMITED TIME OFFER - Sign up by 12/31/2025!

Receive $5,000 in Options & Upgrades
Plus: $0 Down + No Payment During Construction *WAC

LIMITED TIME OFFER
Sign up by 12/31/2025!

Receive $5,000 in Options & Upgrades
Plus: $0 Down + No Payment During Construction *WAC

$5,000

Save On Upgrades