Floor Plan

*Plan may show available options & upgrades.

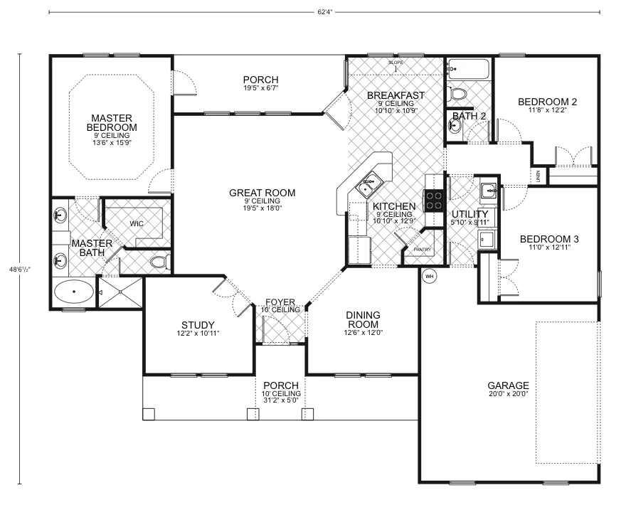
Driftwood B - Custom Home Floor Plan
Virtual Tour

This captivating floor plan embodies a perfect blend of elegance and functionality, making it an exceptional choice for your custom-built home. The welcoming porch invites you into an airy foyer with a lofty ceiling, providing a grand entrance to your abode.

The heart of the home is the great room, where a 9-foot ceiling amplifies the spaciousness, creating an ideal gathering space for family and friends. It flows gracefully into the kitchen, which boasts modern appliances, a pantry for storage, and a central island that is perfect for meal prep and casual dining. The adjacent breakfast area, with its own ceiling detail, offers a cozy spot for morning coffee and informal meals.

For more formal occasions, the dining room is conveniently located to offer an elegant dining experience. A study, tucked away from the main living areas, provides a private space for work or leisure, making it versatile to suit your lifestyle needs.

The master bedroom is a tranquil retreat, featuring a 9-foot ceiling and a generous layout that accommodates a relaxing sitting area. It includes a well-appointed master bath with dual vanities, a large shower, and a walk-in closet, ensuring a serene start to the day. Two additional bedrooms offer comfortable spaces for family or guests, complete with easy access to a shared full bath.

The utility room is efficiently positioned to serve as a laundry and additional storage space, leading out to the two-car garage. With an expansive living area of 1,853 square feet and additional outdoor living space, this floor plan is thoughtfully designed to maximize both comfort and style, providing an idyllic canvas for your new home.

Mortgage Calculator

The calculated amount is an estimate, with the exact
loan terms determined on an individual basis.
Estimated calculated amount does not include taxes & insurance.
$ 200000
$ 150000
$ 750000
$
[downpayment]/[homeprice]*100
%
([homeprice]-[downpayment])*([interestrate]/100)/12/(1-Math.pow(1+([interestrate]/100)/12,-([loanterm]*12)))
$

Request More Information

Unlock "Build Now" Financing

Get 0% down + No Payment Until Completion
*With Approved Credit

$5,000

Save On Upgrades

LIMITED TIME OFFER - Sign up by 12/31/2025!

Receive $5,000 in Options & Upgrades
Plus: $0 Down + No Payment During Construction *WAC

LIMITED TIME OFFER
Sign up by 12/31/2025!

Receive $5,000 in Options & Upgrades
Plus: $0 Down + No Payment During Construction *WAC

$5,000

Save On Upgrades