Floor Plan

*Plan may show available options & upgrades.

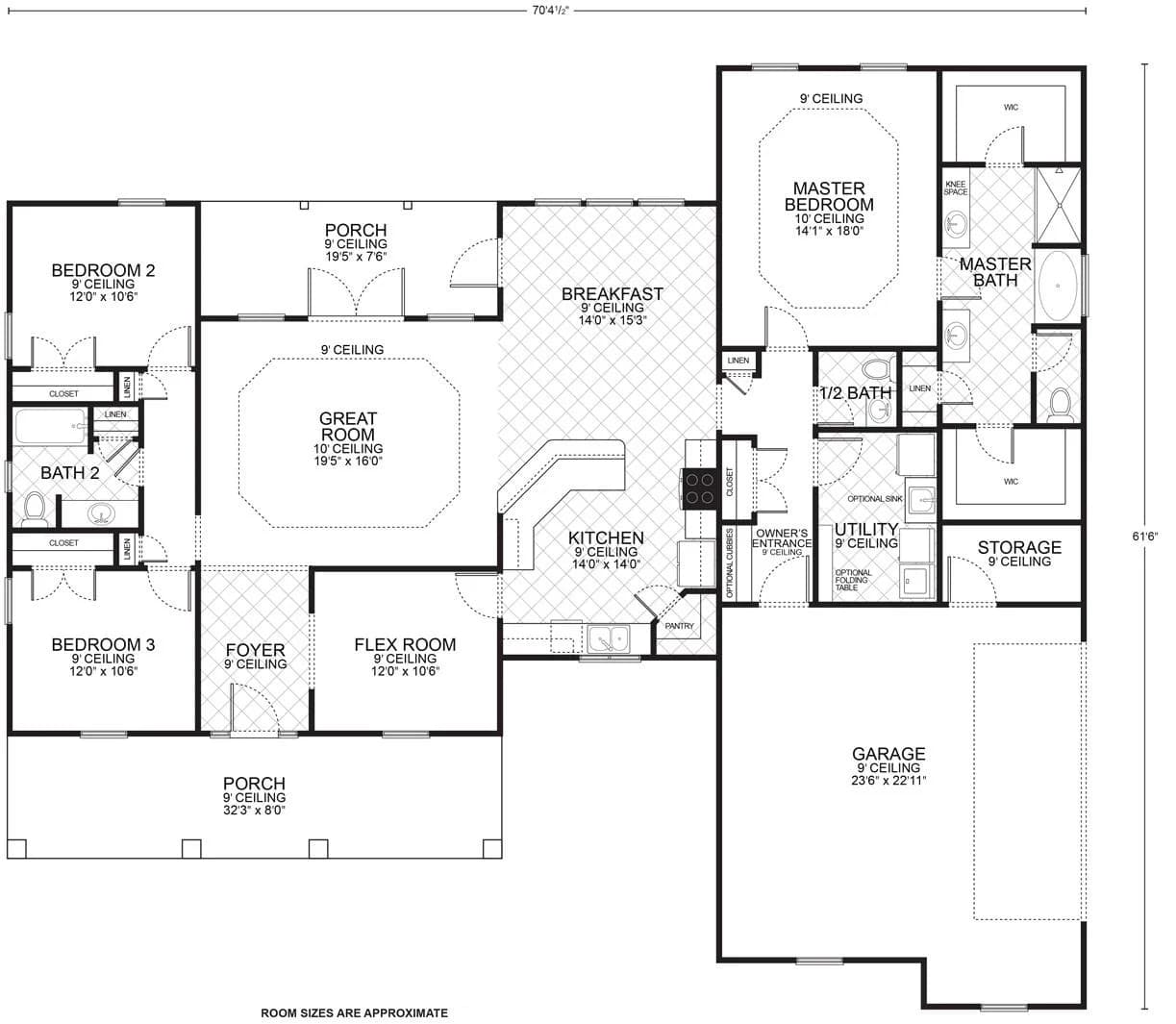
Hillcrest B Floorplan

The Hillcrest B floor plan seamlessly combines modern luxury with everyday functionality, making it an ideal foundation for your custom home. The design starts with a welcoming front porch, leading into a foyer that opens into an expansive great room with a 9-foot ceiling, providing a perfect blend of space and comfort for family living and entertaining.

The heart of the home, the kitchen, boasts ample counter space, modern appliances, a pantry, and an owner’s entrance, all designed for culinary efficiency. It adjoins a cozy breakfast nook that leads out to a back porch, offering a delightful space for meals and relaxation. The formal dining room is conveniently positioned for easy serving from the kitchen, perfect for hosting dinner parties.

The master bedroom is a tranquil retreat, featuring a lofty 10-foot ceiling and an en-suite master bath with dual vanities, a separate shower, and a large walk-in closet. Additional bedrooms are thoughtfully placed to ensure privacy and are served by a full bathroom, with a flex room providing versatility as a guest room, home office, or media room.

A utility room with optional built-in storage keeps daily chores organized, and the adjacent storage area ensures the home remains clutter-free. With an overall living area of 2,200 square feet, the Hillcrest B offers a generous space that can be tailored to your preferences, creating a home that is as inviting as it is functional.

Mortgage Calculator

The calculated amount is an estimate, with the exact
loan terms determined on an individual basis.
Estimated calculated amount does not include taxes & insurance.
$ 200000
$ 150000
$ 750000
$
[downpayment]/[homeprice]*100
%
([homeprice]-[downpayment])*([interestrate]/100)/12/(1-Math.pow(1+([interestrate]/100)/12,-([loanterm]*12)))
$

Request More Information

Unlock "Build Now" Financing

Get 0% down + No Payment Until Completion
*With Approved Credit

$5,000

Save On Upgrades

LIMITED TIME OFFER - Sign up by 12/31/2025!

Receive $5,000 in Options & Upgrades
Plus: $0 Down + No Payment During Construction *WAC

LIMITED TIME OFFER
Sign up by 12/31/2025!

Receive $5,000 in Options & Upgrades
Plus: $0 Down + No Payment During Construction *WAC

$5,000

Save On Upgrades