

*Plan may show available options and upgrades. Click to zoom. Scroll to zoom. Drag to pan.
Your Custom Home Floor Plan
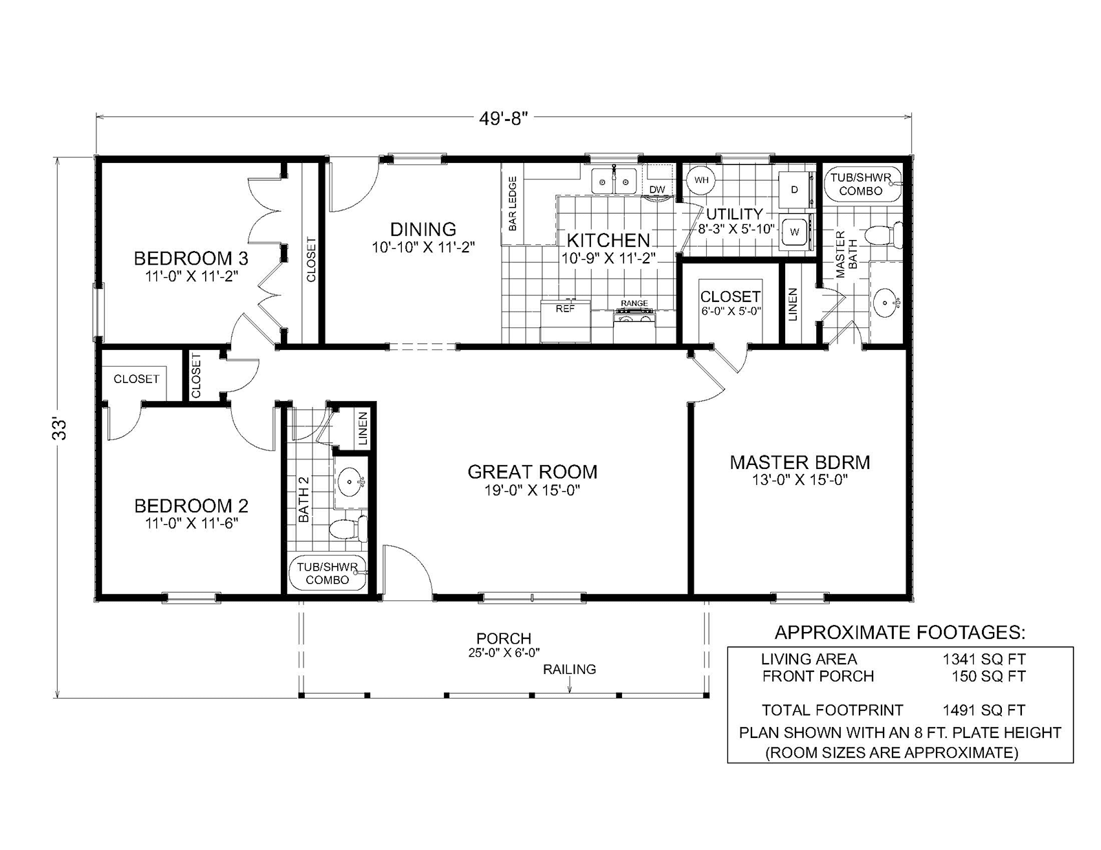
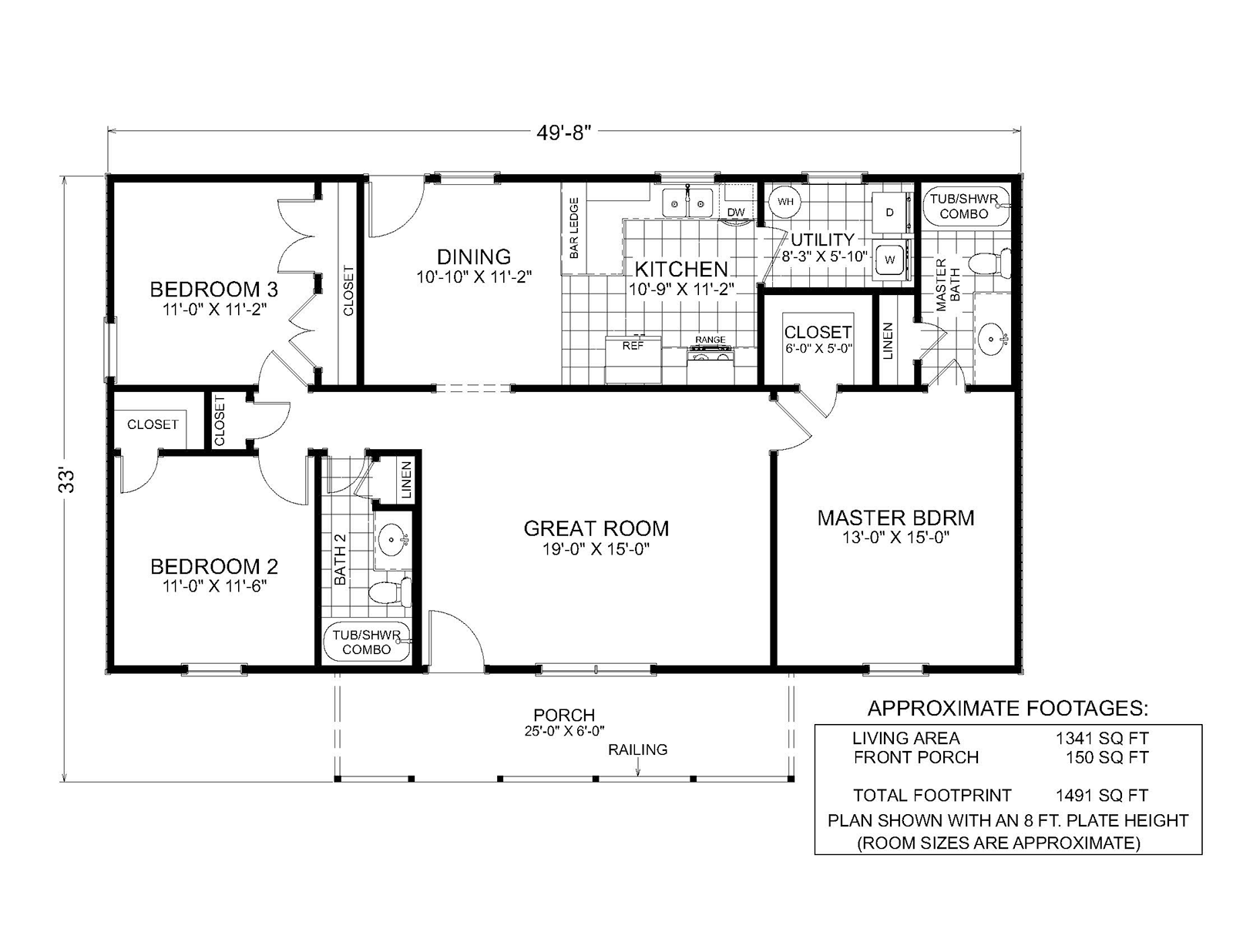
Whitley Floor Plan
3 Beds
2 Baths
1,491 Sq Ft
$0 Down - No Payments During Construction*
*With approved credit. No traditional construction loan required.
This thoughtfully designed floor plan offers a comfortable and efficient layout that blends open-concept living with well-defined private spaces, making it ideal for modern living on any homesite. The welcoming front porch leads into a spacious great room that serves as the central gathering space, perfect for everyday relaxation or entertaining guests. Its open flow creates a natural connection to the dining area and kitchen, enhancing both functionality and livability.
The kitchen is centrally positioned and designed for efficiency, featuring ample counter space, a convenient breakfast bar, and easy access to the adjacent dining area. A nearby utility room adds everyday practicality with space for laundry and additional storage, keeping household tasks neatly organized and out of sight.
The private master bedroom is thoughtfully separated from the secondary bedrooms, creating a peaceful retreat at the end of the day. It offers generous space for a full bedroom set and is complemented by a dedicated closet and an en-suite bath designed for comfort and convenience. Two additional bedrooms are located on the opposite side of the home, each offering comfortable dimensions and closet space, with easy access to a shared full bath.
Additional highlights include efficient storage throughout, a functional layout that maximizes every square foot, and a covered front porch that enhances curb appeal while providing a welcoming outdoor space. With approximately 1,341 square feet of living area and a well-balanced design, this floor plan delivers a smart combination of comfort, simplicity, and timeless appeal, making it an excellent foundation for a personalized custom home.
Living Area
1,491 sq ft
Bedrooms
3
Bathrooms
2
Stories
1
Speak To Your New Custom Home Builder Today!
25+
Years Experience
3,000+
Homes Built
5
Office Locations
A+
BBB Rating
Make It Yours
Customize the Whitley
Every floor plan is a starting point, not a box. Work directly with our design team to personalize every detail of the Whitley to fit your land, your family, and your lifestyle - at a price that's clear from day one.
Cabinet styles and finishes
Flooring throughout
Countertops and backsplashes
Exterior colors and materials
Structural layout changes
Fixtures and hardware
Ceiling treatments
Porch and outdoor living
How It Works
Build the Whitley in 5 Simple Steps
From free site evaluation to move-in day. One team, one price, one beautiful home.
01
Free Site Evaluation
We assess your land for build-readiness including soil, utilities, and access.
02
Choose Your Plan
Select the Whitley or customize it. Bring your own plan too.
03
Get Clear Pricing
Transparent pricing with no hidden fees or surprises.
04
Build Begins
Our experienced team breaks ground with one dedicated point of contact.
05
Move In
Walk through your finished dream home and start making memories.
Take the Next Step
Get Details for the Whitley
Tell us where you want to build and we'll match you with your local team.
Mortgage Calculator
*Estimate only. Does not include taxes and insurance. WAC.
$
$
%
Estimated Monthly Payment
$2,213/mo
Common Questions
Whitley Floor Plan FAQ
Yes. Every Southwest Homes floor plan is a starting point. Work directly with our design team to personalize cabinet finishes, flooring, countertops, fixtures, exterior colors, and structural options. We adapt the Whitley to fit your land, your family, and your lifestyle.
No - traditional construction loans require you to pay interest. We work with lenders who offer construction-to-permanent financing that simplifies this - often with $0 down and no payments and no interest until the build is complete. *WAC
Pricing depends on the floor plan, location, lot conditions, and customizations you choose. We provide transparent pricing with no hidden fees. Contact us for a personalized quote based on your specific plan and land.
Every home is different - the time frame changes from permit approval to move-in, depending on the plan size, site conditions, local permitting timelines, and even weather conditions. Your project manager will give you a specific schedule during the planning phase.
We typically serve a 100-mile radius around each of our offices in San Antonio, Corpus Christi, Canton TX, and Springdale AR. If you're unsure whether your land is in our service area, call your nearest office and we'll let you know right away.
Yes. Southwest Homes offers a Bring Your Own Plan option. If you have a design you love, our team can review it and provide pricing to build it on your land. Learn more about Bring Your Own Plan.
Ready to Build the Whitley on Your Land?
No construction loan required. Transparent pricing. Free site evaluation. 25+ years and 3,000+ homes built.



