

*Plan may show available options and upgrades. Click to zoom. Scroll to zoom. Drag to pan.
Your Custom Home Floor Plan
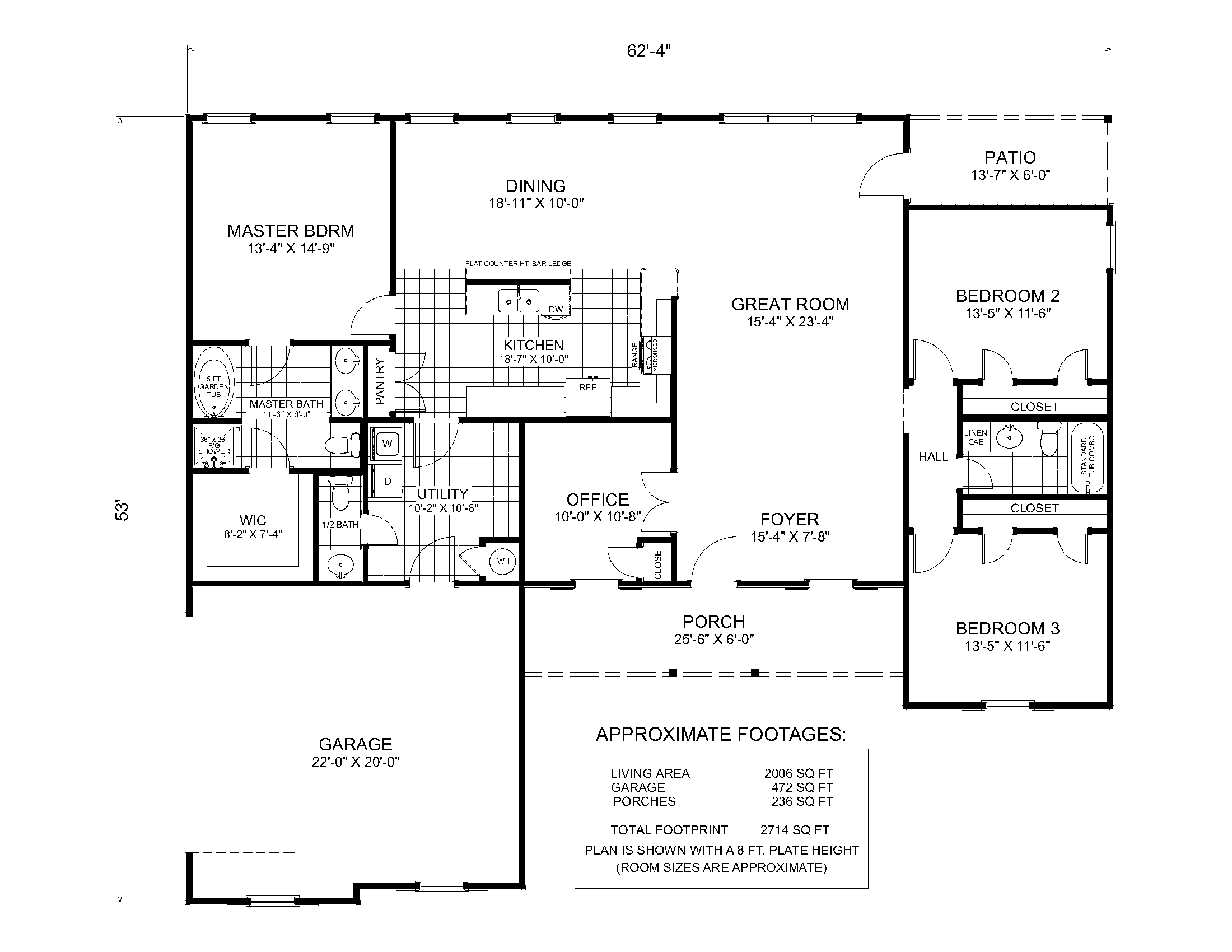
Ferndale Floor Plan
3 Beds
2 Baths
2,006 Sq Ft
$0 Down - No Payments During Construction*
*With approved credit. No traditional construction loan required.
This inviting floor plan offers a well-balanced design that blends open living spaces with thoughtfully placed private areas, making it an ideal choice for a custom home that prioritizes comfort, functionality, and everyday livability. The spacious great room serves as the heart of the home, providing an open and airy environment that is perfect for entertaining guests or enjoying relaxed family time.
The kitchen is designed with both form and function in mind, featuring ample counter space, an efficient layout, and a seamless connection to the adjacent dining area. This cohesive flow creates an ideal setting for casual meals, gatherings, and daily routines, while keeping the kitchen connected to the main living space. Nearby, the dining area offers flexibility for hosting family dinners or more formal occasions.
The master suite is a private retreat, offering a generously sized bedroom, a large walk-in closet, and a well-appointed master bath complete with dual vanities, a soaking tub, and a separate shower. Located away from the main living areas, the additional bedrooms provide privacy and comfort, each featuring generous closet space and convenient access to shared full bathrooms.
Additional highlights include a dedicated home office ideal for remote work or study, a centrally located utility room with ample storage, and a welcoming foyer that creates a strong first impression upon entry. Outdoor living is enhanced by covered front and rear porches, offering peaceful spaces to relax and enjoy the surrounding views. The attached garage provides ample room for vehicles, storage, and hobbies.
With approximately 2,006 square feet of living space, a spacious garage, and multiple covered porches, this floor plan delivers a thoughtful layout that maximizes usability without sacrificing style. Every detail has been carefully considered, making the Ferndale Floor Plan a perfect foundation for a custom home tailored to your lifestyle.
Living Area
2,006 sq ft
Bedrooms
3
Bathrooms
2
Stories
1
Speak To Your New Custom Home Builder Today!
25+
Years Experience
3,000+
Homes Built
5
Office Locations
A+
BBB Rating
Make It Yours
Customize the Ferndale
Every floor plan is a starting point, not a box. Work directly with our design team to personalize every detail of the Ferndale to fit your land, your family, and your lifestyle - at a price that's clear from day one.
Cabinet styles and finishes
Flooring throughout
Countertops and backsplashes
Exterior colors and materials
Structural layout changes
Fixtures and hardware
Ceiling treatments
Porch and outdoor living
How It Works
Build the Ferndale in 5 Simple Steps
From free site evaluation to move-in day. One team, one price, one beautiful home.
01
Free Site Evaluation
We assess your land for build-readiness including soil, utilities, and access.
02
Choose Your Plan
Select the Ferndale or customize it. Bring your own plan too.
03
Get Clear Pricing
Transparent pricing with no hidden fees or surprises.
04
Build Begins
Our experienced team breaks ground with one dedicated point of contact.
05
Move In
Walk through your finished dream home and start making memories.
Take the Next Step
Get Details for the Ferndale
Tell us where you want to build and we'll match you with your local team.
Mortgage Calculator
*Estimate only. Does not include taxes and insurance. WAC.
$
$
%
Estimated Monthly Payment
$2,213/mo
Common Questions
Ferndale Floor Plan FAQ
Yes. Every Southwest Homes floor plan is a starting point. Work directly with our design team to personalize cabinet finishes, flooring, countertops, fixtures, exterior colors, and structural options. We adapt the Ferndale to fit your land, your family, and your lifestyle.
No - traditional construction loans require you to pay interest. We work with lenders who offer construction-to-permanent financing that simplifies this - often with $0 down and no payments and no interest until the build is complete. *WAC
Pricing depends on the floor plan, location, lot conditions, and customizations you choose. We provide transparent pricing with no hidden fees. Contact us for a personalized quote based on your specific plan and land.
Every home is different - the time frame changes from permit approval to move-in, depending on the plan size, site conditions, local permitting timelines, and even weather conditions. Your project manager will give you a specific schedule during the planning phase.
We typically serve a 100-mile radius around each of our offices in San Antonio, Corpus Christi, Canton TX, and Springdale AR. If you're unsure whether your land is in our service area, call your nearest office and we'll let you know right away.
Yes. Southwest Homes offers a Bring Your Own Plan option. If you have a design you love, our team can review it and provide pricing to build it on your land. Learn more about Bring Your Own Plan.
Ready to Build the Ferndale on Your Land?
No construction loan required. Transparent pricing. Free site evaluation. 25+ years and 3,000+ homes built.



