Floor Plan

*Plan may show available options & upgrades.

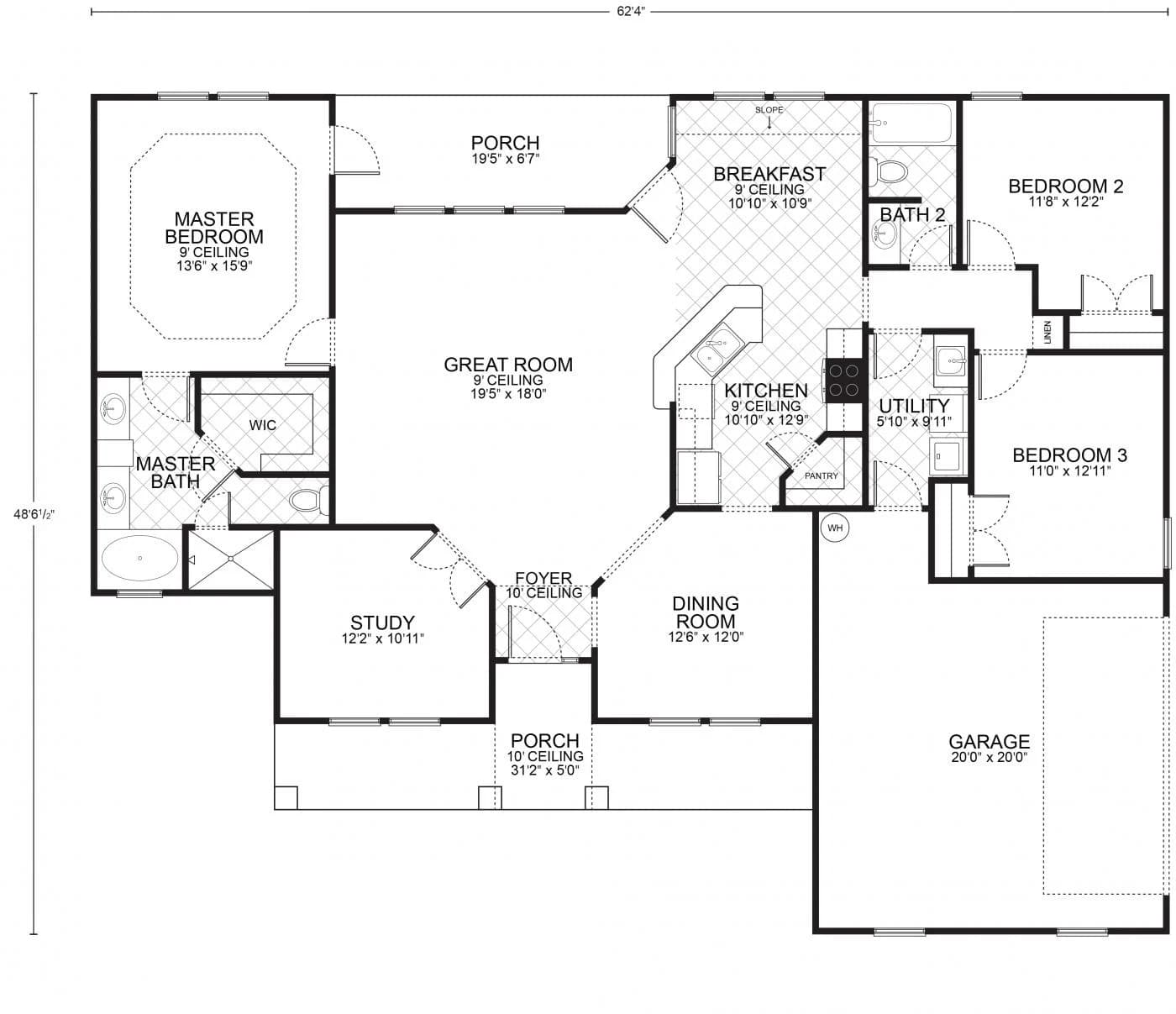
Driftwood C Floorplan
Gallery

This inviting floor plan is a perfect blueprint for those looking to build a custom home that combines classic comfort with modern flair. The large porch welcomes you into a spacious foyer, leading to a study room that offers a quiet retreat for work or relaxation.

At the center of the home is the great room, with a 9-foot ceiling that enhances the sense of space, making it an ideal area for hosting gatherings or enjoying peaceful family time. The great room is flanked by a well-appointed kitchen, featuring modern appliances, a convenient pantry, and an island that serves as the heart of the home. The adjacent breakfast area provides a cozy space for casual dining and lively conversation.

For more formal occasions, the dining room is elegantly situated to offer a sophisticated dining experience. The master suite is a secluded haven, complete with a large bedroom, a luxurious master bath with a walk-in closet, and private access to the back porch, perfect for quiet morning coffees or evening relaxation.

Two additional bedrooms are thoughtfully positioned to maximize privacy and convenience, with easy access to a full bath. A utility room is strategically located to serve as a laundry and additional storage space, leading out to the two-car garage.

With a total living area of 1,853 square feet, this floor plan is designed to provide a perfect balance between shared living spaces and private retreats. The additional outdoor living space offers extended enjoyment of your surroundings, making this floor plan an exceptional choice for a family seeking a home that is both beautiful and functional.

Mortgage Calculator

The calculated amount is an estimate, with the exact
loan terms determined on an individual basis.
Estimated calculated amount does not include taxes & insurance.
$ 200000
$ 150000
$ 750000
$
[downpayment]/[homeprice]*100
%
([homeprice]-[downpayment])*([interestrate]/100)/12/(1-Math.pow(1+([interestrate]/100)/12,-([loanterm]*12)))
$

Request More Information

Unlock "Build Now" Financing

Get 0% down + No Payment Until Completion
*With Approved Credit

$5,000

Save On Upgrades

LIMITED TIME OFFER - Sign up by 12/31/2025!

Receive $5,000 in Options & Upgrades
Plus: $0 Down + No Payment During Construction *WAC

LIMITED TIME OFFER
Sign up by 12/31/2025!

Receive $5,000 in Options & Upgrades
Plus: $0 Down + No Payment During Construction *WAC

$5,000

Save On Upgrades