Kendall Floor Plan - 3 Bed / 2 Bath / 2,033 Sq Ft

The Kendall.
Spacious Living,
Designed for You.

2,033 square feet of open-concept living designed for the way your family lives. Customizable inside and out - built on your lot with transparent pricing.

View Floor Plan
Ask About Our $0 Down Custom Home Financing. *WAC

Build the Kendall
on Your Land
Starting at $0 Down

Transparent pricing, no hidden fees, and no payments during construction. 25+ years and 3,000+ homes built across Texas and Arkansas.

Learn About Financing
Free Site Evaluation - Start Today

Build On Your Lot
The Kendall
Custom Built Home

From site evaluation to move-in day in 5 simple steps. One dedicated team, one clear price, one beautiful home.

See Our 5-Step Process
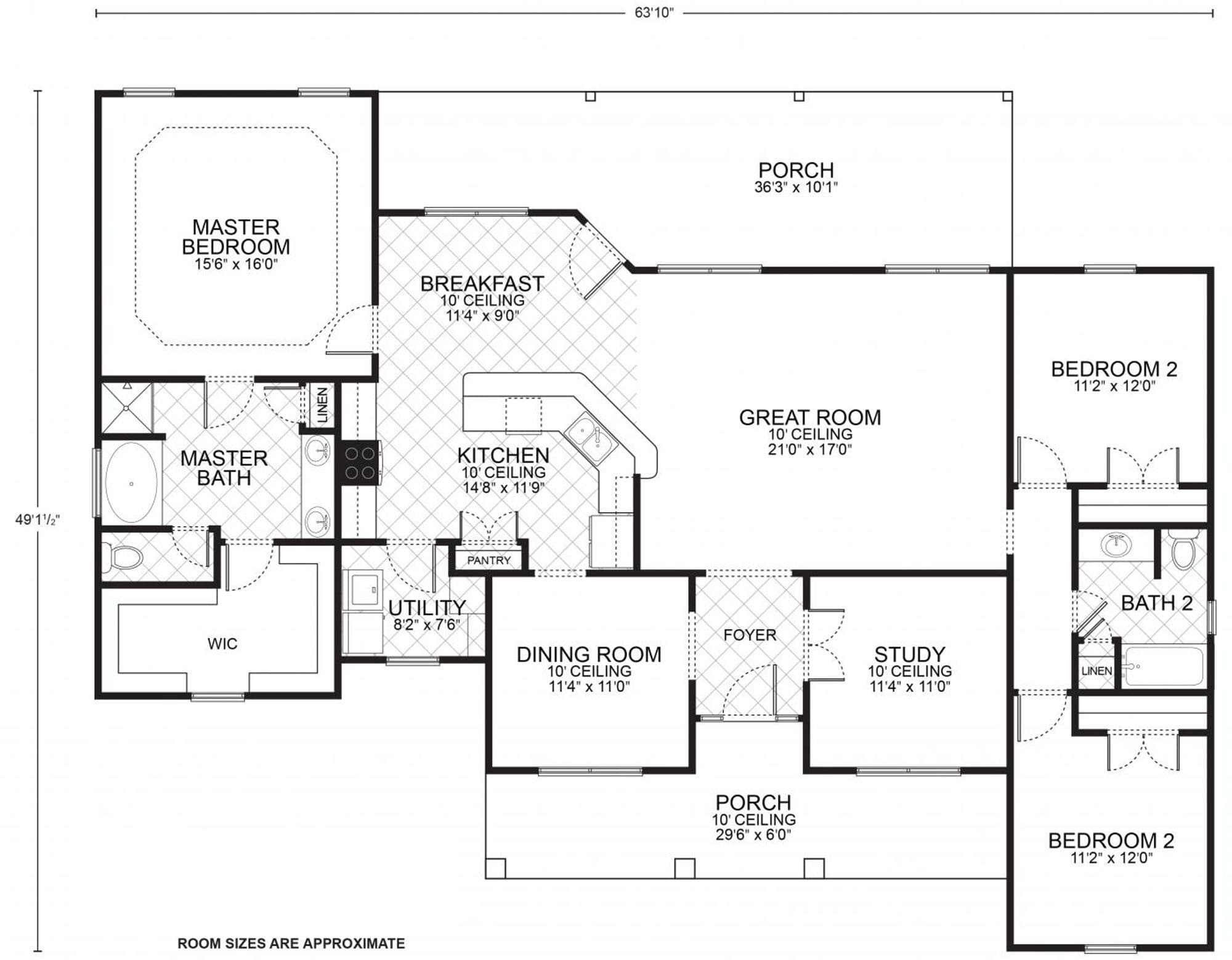
Kendall custom home floor plan - 3 Bed / 2 Bath / 2,033 Sq Ft

*Plan may show available options and upgrades. Click to zoom. Scroll to zoom. Drag to pan.

Your Custom Home Floor Plan

Kendall Floor Plan

3 Beds
2 Baths
2,033 Sq Ft
View All Plans
$0 Down - No Payments During Construction* *With approved credit. No traditional construction loan required.

The Kendall floor plan is a modern and spacious design that effortlessly combines functionality with elegance, ideal for crafting your custom home. The large porch welcomes you into a bright foyer, which opens to an impressive great room with a 10-foot ceiling, providing a generous space for entertaining and relaxing with family and friends.

The kitchen is thoughtfully positioned as the heart of the home, boasting a pantry for storage and a large island that encourages social cooking and dining. It connects to a charming breakfast nook for casual meals and overlooks the great room, allowing for seamless interaction. For formal dining, there is a dedicated dining room with a 10-foot ceiling, adding an air of sophistication to your meals.

The master suite is designed to be a tranquil retreat, featuring a spacious bedroom with ample room for a sitting area, a luxurious master bath with dual vanities, and a large walk-in closet. The home also offers two additional bedrooms, each with convenient access to the second full bath, ensuring privacy and comfort for all.

A study with a 10-foot ceiling provides flexibility as a home office or extra bedroom, and the utility room is conveniently located for household management. With a total living area of 2,033 square feet and additional porch space, the Kendall floor plan is an exceptional choice for those seeking a home that is both inviting and stylish.

Living Area 2,033 sq ft
Bedrooms 3
Bathrooms 2
Stories 1
Explore Financing Options Download Brochure

Speak To Your New Custom Home Builder Today!

SWH Of San Antonio 4001 N I-35 Frontage Rd New Braunfels, TX 78132 830-626-3030
SWH Of Canton 21774 Interstate 20 Wills Point, TX 75169 903-287-9119
SWH Of Corpus Christi 4250 Five Points Rd Corpus Christi, TX 78410 361-241-6011
SWH Of Springdale 4264 N. Thompson Springdale, AR 72764 479-756-2626
25+
Years Experience
3,000+
Homes Built
5
Office Locations
A+
BBB Rating
Make It Yours

Customize the Kendall

Every floor plan is a starting point, not a box. Work directly with our design team to personalize every detail of the Kendall to fit your land, your family, and your lifestyle - at a price that's clear from day one.

Cabinet styles and finishes
Flooring throughout
Countertops and backsplashes
Exterior colors and materials
Structural layout changes
Fixtures and hardware
Ceiling treatments
Porch and outdoor living
How It Works

Build the Kendall in 5 Simple Steps

From free site evaluation to move-in day. One team, one price, one beautiful home.

01

Free Site Evaluation

We assess your land for build-readiness including soil, utilities, and access.

02

Choose Your Plan

Select the Kendall or customize it. Bring your own plan too.

03

Get Clear Pricing

Transparent pricing with no hidden fees or surprises.

04

Build Begins

Our experienced team breaks ground with one dedicated point of contact.

05

Move In

Walk through your finished dream home and start making memories.

Take the Next Step

Get Details for the Kendall

Tell us where you want to build and we'll match you with your local team.

Mortgage Calculator

*Estimate only. Does not include taxes and insurance. WAC.

$
$
%
Estimated Monthly Payment
$2,213/mo
Google Rating
3,000+
Homes Built
$0
Down to Start
Common Questions

Kendall Floor Plan FAQ

Yes. Every Southwest Homes floor plan is a starting point. Work directly with our design team to personalize cabinet finishes, flooring, countertops, fixtures, exterior colors, and structural options. We adapt the Kendall to fit your land, your family, and your lifestyle.
No - traditional construction loans require you to pay interest. We work with lenders who offer construction-to-permanent financing that simplifies this - often with $0 down and no payments and no interest until the build is complete. *WAC
Pricing depends on the floor plan, location, lot conditions, and customizations you choose. We provide transparent pricing with no hidden fees. Contact us for a personalized quote based on your specific plan and land.
Every home is different - the time frame changes from permit approval to move-in, depending on the plan size, site conditions, local permitting timelines, and even weather conditions. Your project manager will give you a specific schedule during the planning phase.
We typically serve a 100-mile radius around each of our offices in San Antonio, Corpus Christi, Canton TX, and Springdale AR. If you're unsure whether your land is in our service area, call your nearest office and we'll let you know right away.
Yes. Southwest Homes offers a Bring Your Own Plan option. If you have a design you love, our team can review it and provide pricing to build it on your land. Learn more about Bring Your Own Plan.

Ready to Build the Kendall on Your Land?

No construction loan required. Transparent pricing. Free site evaluation. 25+ years and 3,000+ homes built.